QJB型潛水攪拌機
1、污水(廢水)/活性污泥的混合
2、控制濃縮污泥分離
3、酸、堿中和及PH值調整工藝
4、防止顆粒在池壁和池底的凝結和沉淀
5、提高傳熱系統的效率
目錄
潛水攪拌機用途
QJB系列潛水攪拌機和QJT系列潛水推流機是在引進瑞典飛力潛水電機密封技術的基礎上自行研制開發成功的。經過多年的實踐摸索,現已形成了混合攪拌和低速推流兩大系列產品,因其在型式、結構和試驗方法上的創新,使得該產品總體性能達到了國外同類產品的水平。
潛水攪拌機結構特點
混合攪拌系列產品選用多極電機,采用直聯式結構,能耗低,效率高;葉輪通過精鑄或沖壓成型,精度高,推力大,外型美觀流暢,結構緊湊。
低速推流系列產品采用擺線針輪減速機,配備功率小,轉速低,葉輪直徑大,服務面積廣。葉輪由聚胺脂材料和鋁合金鑄成,強度高,耐腐蝕性強,除了具有攪拌的功能外還能外還兼有推流和創建水流的作用。
潛水攪拌機的電機繞組為F級絕緣,防護等級為IP68。在污水廠的曝氣系統中配合使用,可使系統能耗大大降低,且充氧量明顯提高,能有效的防止沉淀。根據工藝要求,直聯式潛水攪拌可配用導流罩。
|
|
|
QJB型潛水攪拌機
|
QJT低速推流系列攪拌機
|
潛水攪拌機技術參數
|
型 號 |
功率 |
電流 |
直徑 |
轉速 |
推力 |
重量 |
|
|
kW |
A |
mm |
r/min |
N |
kg |
||
|
潛水攪拌機 |
QJB0.85/8-260/3-740C |
0.85 |
3.2 |
260 |
740 |
165 |
65 |
|
QJB1.5/6-260/3-980C |
1.5 |
4 |
260 |
980 |
300 |
65 |
|
|
QJB2.2/8-320/3-740C |
2.2 |
5.9 |
320 |
740 |
320 |
70 |
|
|
QJB4/6-320/3-960C |
4 |
10.3 |
320 |
960 |
610 |
70 |
|
|
QJB5.5/8-640/3-232C |
5.5 |
13.5 |
640 |
232 |
1200 |
184 |
|
|
QJB7.5/6-640/3-303C |
7.5 |
17.5 |
640 |
303 |
2400 |
229 |
|
|
QJB11/6-790/3-303C |
11 |
25.4 |
790 |
303 |
3500 |
389 |
|
|
QJB15/6-790/3-368C |
15 |
34.5 |
790 |
303 |
4000 |
389 |
|
|
QJB1.5/8-400/3-740S |
1.5 |
5.4 |
400 |
740 |
600 |
70 |
|
|
QJB2.5/8-400/3-740S |
2.5 |
9 |
400 |
740 |
800 |
70 |
|
|
QJB4/12-620/3-480S |
4 |
14 |
620 |
480 |
1400 |
184 |
|
|
QJB4/6-400/3-980S |
4 |
12 |
400 |
980 |
1200 |
73 |
|
|
QJB5/12-620/3-480S |
5 |
18.2 |
620 |
480 |
1800 |
184 |
|
|
QJB7.5/12-620/3-480S |
7 |
27 |
620 |
480 |
2600 |
229 |
|
|
QJB10/12-620/3-480S |
10 |
32 |
620 |
480 |
3300 |
229 |
|
注:潛水攪拌機在額定電壓380V,頻率為50Hz,繞組絕緣等級F級,防護等級IP68,工作制式Ⅰ條件下
潛水攪拌機型號說明
潛水攪拌機用途及適用條件
混合攪拌系列潛水攪拌機適用于各種水處理工藝和工業流程需要保持固、液二相或固、液、氣三相介質均勻混合反應的場所。
QJB(T)型潛水攪拌機混合攪拌系列潛水攪拌機適用于各種水處理。工藝和工業流程需要保持固、液二相或固、液、氣三相介質均勻混合反應的場所。
1、污水(廢水)/活性污泥的混合
2、控制濃縮污泥分離
3、酸、堿中和及PH值調整工藝
4、防止顆粒在池壁和池底的凝結和沉淀
5、提高傳熱系統的效率
潛水攪拌機在下列條件下應能正常連續運行:
1、高介質溫度不超過40℃
2、介質的PH值在5-9
3、介質密度不超過115KG/M^3
4、長期潛水運行,潛水深度一般不超過20米
5、流速不低于0.15m/s
警 告!
潛水攪拌機必須完全潛入水中工作,不能在易燃易爆和強腐蝕性的環境中工作!
潛水攪拌機選型注意事項
為保證潛水攪拌機取得佳運行效果,請使用方提供如下資料;
◎運用目的;
◎池型及尺寸,包括水深;
◎攪拌介質的特性,包括粘度、密度、溫度、及固體物含量等。
潛水攪拌機安裝系統
潛水攪拌機的專用安裝系統可在無需排出池中污水的情況下,能快速安裝和拆卸潛水攪拌機。
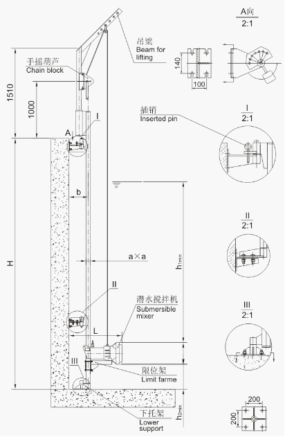
當池深H<4米時建議采用安裝系統Ⅰ。潛水攪拌機的潛水深度可以根據需要進行垂直方向的調節,而且在水平面內可繞導桿旋轉的大角度為±60°起吊系統底座、支撐架和下托架與池的有關聯接面均采用膨脹螺栓固定,無需預留孔。 當池深H>4米時建議采用安裝系統Ⅱ,需在池底做一混凝土基礎(或鋼結構底座)。起吊系統底座、鋼繩固定架和導向底座與池的有關聯接面均采用膨脹螺栓固定,無需預留孔。安裝系統Ⅱ用導向鋼繩替代導桿,具有運輸方便、現場安裝簡單等特點。該系統從根本上避免了由于運輸引起導桿彎曲、變形有而影響正常使用的情況,并有效改善了池深過深情況下,由于導桿的安裝誤差而導致的無法正常起吊等現象。在有懸臂池頂(如圖)的安裝條件下更顯得操作方便可靠。 客戶定貨時,請提供池深H及池型圖,以便廠方加工時確定導桿或導向鋼絲的尺寸。安裝系統的材質采用不銹鋼(或碳鋼)制造。安裝系統中除導桿或導向鋼絲、起吊底座外,多臺攪拌機可共用一套起吊裝置(用戶有特殊要錄除外)。 潛水攪拌機可以有多種安裝方式,這里提供四種通用的方式供選擇,尺寸可參考下表。我公司還可以根據用戶的要求作特殊設計。



|
型號 |
a |
D |
b |
L |
h1min |
h2min |
安裝系統 |
|
QJB0.85/8 |
Φ48 |
360 |
330 |
630 |
500 |
110 |
Ⅰ |
|
QJB1.5/6 |
Φ48 |
360 |
330 |
630 |
500 |
110 |
Ⅰ |
|
QJB2.2/8 |
Φ70 |
460 |
320 |
970 |
800 |
150 |
Ⅱ |
|
QJB4/6 |
Φ70 |
460 |
320 |
970 |
800 |
150 |
Ⅱ |
|
QJB1.5/8 |
Φ70 |
530 |
320 |
960 |
500 |
200 |
Ⅱ |
|
QJB2.5/8 |
Φ70 |
530 |
320 |
960 |
500 |
200 |
Ⅱ |
|
QJB3/8 |
Φ70 |
530 |
320 |
1010 |
800 |
200 |
Ⅱ |
|
QJB4/6 |
Φ70 |
530 |
320 |
1010 |
800 |
300 |
Ⅱ |
|
QJB4/12 |
Φ100 |
820 |
335 |
1150 |
1100 |
300 |
Ⅲ-1,Ⅲ-2 |
|
QJB5/12 |
Φ100 |
620 |
335 |
1150 |
1100 |
300 |
Ⅲ-1,Ⅲ-2 |
|
QJB7.5/12 |
Φ100 |
820 |
335 |
1280 |
1500 |
300 |
Ⅲ-1,Ⅲ-2 |
|
QJB10/12 |
Φ100 |
820 |
335 |
1280 |
1500 |
300 |
Ⅲ-1,Ⅲ-2 |
注:1、潛水攪拌機的專用安裝系統,可在無需排出池中污水的情況下,快速安裝和拆卸潛水攪拌機;
2、安裝系統I只適用于池深<4m,機型為QJBO.85/8和QJBl.5/6,且可在水平方向和垂直方向調節角度;當池深>4m時,應選用安裝系統II型。
3、安裝系統II、III導桿可沿水平方向繞導桿軸線旋轉,大轉角為±60°;
4、當H>4m時需,在導桿中間添加一支撐架;
5、支撐架和下托架與池壁、池底均用膨脹螺栓或化學錨栓固定,無需預留孔;
6、客戶定貨時,請提供池深H及池型圖,以便確定導桿尺寸和支撐架個數;
7、安裝系統材質采用不銹鋼和碳鋼防腐可供選擇;
8、多臺攪拌機可共用一套起吊系統。






潛水攪拌機安裝注意事項
◎導桿或導向鋼絲應與水平垂直,可采用鉛錘校正;
◎吊鉤在起吊潛水攪拌機時,葉輪端較水平面上應上仰5°-10°
◎通過起吊裝置上的鏈條的調節,使得潛水攪拌機沿導桿或導向鋼絲滑下過程中,起吊鉤和潛水攪拌機的起吊重心處于同一垂直線上。
潛水攪拌機選型注意事項
潛水攪拌機的選型是一項比較復雜的工作,選型的正確與否直接影響設備的正常使用,作為選型的原則就是要讓潛水攪拌機在適合的容積里發揮充分的攪拌功能,一般可用流速來確定。根據污水處理廠不同的工藝要求,潛水攪拌機佳流速應保證在0.15~0.3m/s之間,如果低于0.15m/s的流速則達不到推流攪拌效果,超過0.3m/s的流速則會影響工藝效果且造成浪費。所以在選型前首先確定QJB潛水攪拌機運用的場所,如:污水池、污泥池、生化池;其次是介質的參數,如:懸浮物含量、粘度、溫度、PH值;還有水池的形狀、水深甚至安裝方式等都對選型產生影響,同時還應考慮到節能因素,因為這將影響到用戶今后的運行成本?蓞⒖枷旅娴臐撍當嚢铏C流場圖。
為保證潛水攪拌機取得佳效果,請使用方提供如下資料:
1、運用目的
2、池型
3、池尺寸
4、介質特性包括粘度、密度、固體物含量等。
潛水攪拌機所需要的配套功率是按容積大小,攪拌液體的密度、粘度和攪拌深度而確定的,根據具體情況應采用一臺或多臺攪拌機。
注:
1、選型問題,請與我公司技術部門聯系。
2、潛水攪拌機必須完全潛入水中工作,不能在易燃易爆的環境下或有強腐蝕性液體的環境中工作,小潛入深度900mm。
十、QJB潛水攪拌機選型方法參考資料:
1、根據圖1或表1確定待攪拌介質的污泥校正系數。
2、根據圖2或表2確定攪拌池的池型校正系數。
3、按每立方米清水所需耗功4.8W,乘以污泥校正系數,再乘以池型校正系數,得出每立方米待混合攪拌介質所需耗功的實際值,再乘以待攪拌介質的體積,得出整池待混合攪拌介質所需的功率。
圖1:淤泥校正系數曲線
Ⅰ-一次淤泥;Ⅱ-二次淤泥;Ⅲ-水解淤泥
表1:污泥校正系數表
表2:池型校正系數表
表3:池型校正系數表
潛水攪拌機流場圖
以下流速場是在清水中,邊界水流速度為V=0.1m/s 工況下:
潛水攪拌機運行實況
和傳統長軸攪拌機相比,QJB型潛水攪拌機的優點在于可生產不同的流向。由攪拌機的不同安裝位置,可得到不同效果的多種流動模式。從而在池中創造更好的流動模式,消除攪拌死角。攪拌機所需要的配套功率是按池容積大小,介質的密度、粘度和挽排介質深度等確定的,根據其體情況,應選用一臺或多臺攪拌機。 為了保證提拌機在不同池型中的運行高效節能.可參考下列的典型安裝形式。
圓形池:
該旋轉流動公式是筒單的一種。在相時較短的運行時間內就創造高的流速,在非溶性固體含量高的介質中,這是一種高效的攪拌方式。然而必須注意,較重的物質可能沉積在池底中央。
|
|
|
|
|
該旋轉流動公式是筒單的一種。在相時較短的運行時間內就創造高的流速,在非溶性固體含量高的介質中,這是一種高效的攪拌方式。然而必須注意,較重的物質可能沉積在池底中央。 |
如果攪拌機軸線與池中線成7-10°安裝,可形成全池挽拌而不會產生旋轉。池中液體的深度應在池的直徑的0.3-1倍之間。 |
對角錯開,避免短路循環 |
方形池:
如按下圖方式安裝攪拌機可在方形池形成高效的攪拌效果。當使用一臺攪拌機時,池長寬比不大于5。否則應安裝多臺攪拌機。若長寬比不大于2.5可得到佳運行效果。
|
|
|
|
|
如池寬小于5-8倍的葉輪的情況下,可按上圖安裝方式 |
在較大池中,攪拌機可按上圖安裝 |
考慮進出口 |
|
|
|
|
|
利用池壁反射 |
射流的交叉 |
使用多個攪拌機時,推薦使用 |
現場示意圖
潛水攪拌機產品優勢與同類產品比較
|
攪拌推流設備 |
市場同類產品 |
|
1.開發研制起點高,自主知識產權多 以提高國產裝備能力、替代進口為已任,自主創新研發了滿足市場細分要求的系列化產品。擁有多項原創設計和多項專利技術,其機械性能、水力性能和降耗節能水平領先于國內外。擁有一項國家發明專利。 |
1.技術落后、故障較高 同類產品,未有多大創新,采用的葉輪結構、傳動結構、導軌耦合座結構、密封結構等仍然是上世紀復制的技術,設備性能嚴重滯后污水處理工藝要求,不但沒有技術進步,而且故障較高。 |
|
2.克服了市場同類產品的缺陷,排除了市場同類產品的故障 1)解決了使用壽命短、需經常維修更換的技術難題; 2)解決了運行噪音大、振動大的技術難題; 3)解決了因污水中有雜物纏繞機械密封件而使密封不可靠的技術難題; 4)解決了減速傳動機構體積大、重量重、軸向長度長、傳動件容易損壞的技術難題; 5)解決了起吊裝置提升不靈活、容易卡死的技術難題; 6)解決了水下安裝座與混凝土地基固定不牢靠、容易松動,造成水下維修困難的技術難題; 7)解決了水下耦合座能實現對設備自動固定和夾緊的技術難題; 8)解決了葉輪平衡、防腐、幾何誤差、受力均衡等一系列技術難題; 9)解決了電纜線進線密封處因拽拉而漏水的技術難題; 10)解決了污水處理廠改造擴容需帶水安裝的技術難題。 |
2.缺陷一直存在,未見改進、故障居高不下,難以排除 多年來,市場同類產品一直存在著使用壽命短、減速機構容易損壞、運行不平穩、噪音振動大、動密封失效漏水、上下滑移卡死、不靈活、推流效果差、能耗高等問題。故障多、維修麻煩、維護成本高。 |
|
3.產品特色及技術優勢 1)玻璃鋼葉輪,高強度復合材料,整體式成型、耐腐蝕能力強、水阻小、重量輕、效率高,幾何中心對稱性好、動平衡度高,為國內外首創; 2)微型潛水式傳動箱,結構緊湊、傳動平穩、體積小、重量輕、效率高、故障少、壽命長。 3)內置腔油潤滑動密封系統,密封可靠,永久不受污水中污物的影響; 4)底座式承力方式,設備重力由底座承受,運行穩定,避免了傳統的導桿承力方式而引起的晃動和振動; 5)臥床式V錐吸振耦合座,V錐結構,能實現設備自動對中和就位、自動固定和夾緊;側面設置減振墊,以吸收振動,自然調適設備的就位狀態;整體臥床式布置,猶如嬰兒躺在搖籃里,平穩和安全; 6)導軌式底座支撐結構,既是提升導向機構,又是吸振耦合座承力支撐,提升滑移穩定,支撐受力簡潔可靠,抵抗側向偏心而引起的沖擊載荷能力強; 7)電纜線設置防拽拉保護裝置,該裝置有兩部分組成,一是水下進線密封處輔助保護機構,保護進線密封不被拽拉損壞;二是水上防電纜線脫落機構,保護電纜線不會掉落、不會被葉輪纏繞; 8)組合式防卡死滑移機構,提升機構上設計軸套定位式雙軸承防塵滑輪,確;啽旧磙D動靈活,不會發生輪緣摩擦兩面支撐件的情況;設備尾翼上設計適度的移動滑輪組,使其不存在與導軌發生自鎖的現象,保證滑移順暢; 9)桁架式帶水安裝裝置,該裝置為國內外首創,應市場用戶要求而開發研制,直接在水上固定安裝設備。 10)幫助用戶科學選型,配置合理化功率; 11)一般配置和優良配置,適合用戶需求 |
3.同類產品技術狀況 1)常規材料葉輪,或重量大,或耐腐蝕性弱,或剛性差,動態工況下葉片變形,或韌性低,受不平衡沖擊力易折斷。特別是葉片與輪轂分體式組合,螺紋式聯結,不僅輪轂結構復雜,體積大,重量大,且難以保證兩葉片中心對稱的幾何精度,更難保證長時間工作螺紋不松動。另外,葉片的造型千姿百態,很多未經嚴謹的設計和科學的論證,而因水力性能差、推流攪拌能力低,能耗高; 2)通用減速轉動機構,適應潛水工況的能力不強,且結構閑散,體積大,傳動效率低,故障率高,壽命短; 3)敞口式污水潤滑機械密封結構,機械密封件靠污水潤滑,直接裸露在污水中,易受水草、纖維、懸浮顆粒的纏繞和損傷; 4)導桿承力結構,設備重量由水下導軌承受,導軌較長,中下部受力,剛性不夠,易形成晃動和振動。 5)水下耦合座采用平板式托架或坐凳式托架,這種結構無法實現對設備自動固定和夾緊,振動在所難免。設備在平板式托架或坐凳式托架上運行,其穩定性效果與臥床式V錐吸振耦合座相距甚遠。 6)無電纜線防拽拉保護裝置,電纜線進線密封處無輔助保護裝置,易因拽拉而影響密封效果。上部無防電纜線脫落機構,電纜線會掉落、或被葉輪纏繞; 7)提升滑移組合輪易與導軌形成自鎖和卡死現象,影響操作的方便和靈活。 |
| 我要評論 | |
| 公司名稱/個人: | |
| 手機/電話: | |
| 評論內容: | |











