自動補水排氣定壓裝置選型及安裝使用
時間:2014/9/12 來源:浙江揚子江泵業有限公司
自動穩壓補水裝置是為供熱、采暖、中央空調等系統作自動補水,維護系統壓力而設計研制的。它由隔膜式壓力罐、水泵、控制箱、底架、壓力感應裝置、管道、閥門等組合而成,可廣泛應用于高層建筑、小區供水、工礦企業的上述系統中。
氣室按工藝設計充入預壓所需的氮氣,裝置連接系統,安裝完畢,打開本裝置與系統之間的閥門。當系統水溫的變化引起水的容積膨脹或者收縮時,由隔膜罐自行予以吸入或吐出,使系統壓力穩定在予先設定的壓力上下限的區域里。如果系統由于漏水或其它原因引起壓力下降至予設壓力的下限時,由電接點壓力繼電器動作啟動穩壓泵,使之向系統供水,直至壓力達到所設定的壓力上限值時止。若系統壓力超過設定的高壓力值時,安全閥自行向軟水箱或地溝泄水降壓,如此反復,以維持系統的壓力平衡。
產品特點
1、密封性能好,一次充氣,可常年使用
2、安裝場地不受高度限制
3、配置機動靈活,組合安裝快速,裝置簡便緊湊,占地面積小
4、由于是水氣分離,在全封閉狀態下保證了水質無污染
5、能有效地消除大部分水錘和管道噪音現象
6、占地面積少,投資省,安裝快,操作管理和維修簡便。
7、全自動控制、運行可靠。
適用范圍
在供熱采暖中央空調系統中取代膨脹水箱并具自動補水作用,在多層或高層民用和公共建筑的生活供水,可代替高位水箱或水塔.
技術規格

單罐單泵
|
型號 |
DLDY600-L |
DLDY800-L |
DLDY1000-L |
DLDY1200-L |
DLDY1400-L |
DLDY1600-L |
DLDY1800-L |
|
|
H |
2205 |
2645 |
2950 |
3305 |
3405 |
3790 |
3995 |
|
|
H1 |
1930 |
2370 |
2630 |
3030 |
3130 |
3515 |
3720 |
|
|
H2 |
200 |
200 |
220 |
250 |
250 |
250 |
250 |
|
|
H3 |
80 |
80 |
100 |
100 |
100 |
100 |
100 |
|
|
L |
1050 |
1200 |
1500 |
1620 |
1740 |
1950 |
2300 |
|
|
b |
600 |
800 |
860 |
650 |
800 |
950 |
1250 |
|
|
B |
650 |
900 |
1000 |
790 |
940 |
1090 |
1390 |
|
|
DN |
50 |
50 |
50 |
80 |
80 |
80 |
100 |
|
|
重量0.6Mpa kg 1.0Mpa |
250 303 |
422 649 |
580 887 |
801 1191 |
954 1482 |
1316 1997 |
1504 2283 |
|
|
水泵型號 |
0.3Mpa KW |
CHL2-40 0.55 |
CHL2-40 0.55 |
CHL2-40 0.55 |
CHL4-40 0.55 |
CHL4-40 0.55 |
CHL4-40 0.55 |
CHL4-40 0.55 |
|
0.6Mpa KW |
CDL2-70 0.75 |
CDL2-70 0.75 |
CDL2-70 0.75 |
CDL4-80/7 1.5 |
CDL4-80/7 1.5 |
CDL4-80/7 1.5 |
CDL4-80/7 1.5 |
|
|
1.0Mpa KW |
CDL2-130 1.5 |
CDL2-130 1.5 |
CDL2-130 1.5 |
CDL4-120 2.2 |
CDL4-120 2.2 |
CDL4-120 2.2 |
CDL4-120 2.2 |
|
單罐雙泵
|
型號 |
DLDY600-L |
DLDY800-L |
DLDY1000-L |
DLDY1200-L |
DLDY1400-L |
DLDY1600-L |
DLDY1800-L |
|
|
H |
2205 |
2645 |
2950 |
3305 |
3405 |
3790 |
3995 |
|
|
H1 |
1930 |
2370 |
2630 |
3030 |
3130 |
3515 |
3720 |
|
|
H2 |
200 |
200 |
220 |
250 |
250 |
250 |
250 |
|
|
H3 |
80 |
80 |
100 |
100 |
100 |
100 |
100 |
|
|
L |
1300 |
1500 |
1800 |
1920 |
2090 |
2300 |
2650 |
|
|
b |
600 |
800, |
860 |
860 |
900 |
950 |
1250 |
|
|
B |
650 |
900 |
1000 |
1200 |
1350 |
1550 |
1700 |
|
|
DN |
50 |
50 |
50 |
80 |
80 |
80 |
100 |
|
|
重量0.6Mpa kg 1.0Mpa |
330 383 |
542 769 |
700 1007 |
991 1381 |
1144 1618 |
1506 2187 |
1694 2437 |
|
|
水泵型號 |
0.3Mpa KW |
CHL2-40 0.55 |
CHL2-40 0.55 |
CHL2-40 0.55 |
CHL4-40 0.55 |
CHL4-40 0.55 |
CHL4-40 0.55 |
CHL4-40 0.55 |
|
0.6Mpa KW |
CDL2-70 0.75 |
CDL2-70 0.75 |
CDL2-70 0.75 |
CDL4-80/7 1.5 |
CDL4-80/7 1.5 |
CDL4-80/7 1.5 |
CDL4-80/7 1.5 |
|
|
1.0Mpa KW |
CDL2-130 1.5 |
CDL2-130 1.5 |
CDL2-130 1.5 |
CDL4-120 2.2 |
CDL4-120 2.2 |
CDL4-120 2.2 |
CDL4-120 2.2 |
|
注:兩臺水泵為一用一備。

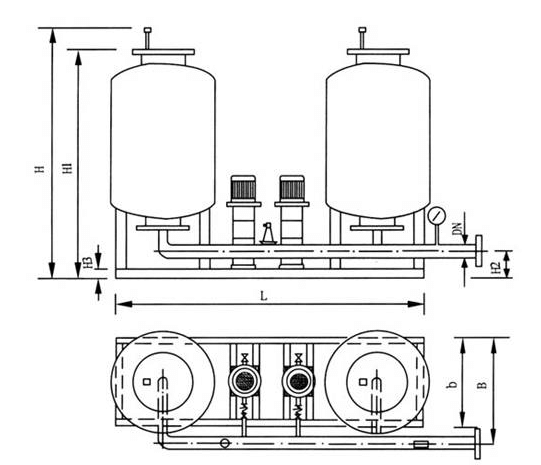
雙罐雙泵
|
型號 |
DLDY600-L |
DLDY800-L |
DLDY1000-L |
DLDY1200-L |
DLDY1400-L |
DLDY1600-L |
DLDY1800-L |
|
|
H |
2205 |
2645 |
2905 |
3305 |
3405 |
3790 |
3995 |
|
|
H1 |
1930 |
2370 |
2630 |
3030 |
3130 |
3515 |
3720 |
|
|
H2 |
200 |
200 |
220 |
250 |
250 |
250 |
250 |
|
|
H3 |
80 |
80 |
100 |
100 |
100 |
100 |
100 |
|
|
L |
2250 - |
2700 - |
3300
|
3370 3570 |
3740 3940 |
4250 4450 |
5000 5200 |
|
|
b |
600 |
800 |
860 |
800 |
900 |
950 |
1250 |
|
|
B |
650 |
900 |
1000 |
865 |
990 |
1090 |
1390 |
|
|
DN |
65 |
80 |
80 |
100 |
100 |
125 |
125 |
|
|
重量0.6Mpa kg 1.0Mpa |
482 696 |
849 1303 |
1167 1781 |
1617 2397
|
1922 2869 |
2640 4000 |
3020 4570 |
|
|
水泵型號 |
0.3Mpa KW |
CHL2-40 0.55 |
CHL2-40 0.55 |
CHL4-40 0.75 |
CHL4-40 0.75 |
CHL4-40 0.75 |
CHL4-40 0.75 |
CHL8-30 1.1 |
|
0.6Mpa KW |
CDL2-70 0.75 |
CDL2-70 0.75 |
CDL4-80/7 1.5 |
CDL4-80/7 1.5 |
CDL4-80 1.5 |
CDL4-80 1.5 |
CDL8-60 2.2 |
|
|
1.0Mpa KW |
CDL2-130 1.5 |
CDL2-130 1.5 |
CDL4-120 2.2 |
CDL4-120 2.2 |
CDL4-120 2.2 |
CDL4-120 2.2 |
CDL8-100 4.0 |
|

|
安裝與使用 |






